Résidence Pralin

Résidence Pralin

Affiner votre recherche

Vacanciers
Ajouter les vacanciers
Adultes 13 ans et plus
Enfants De 3 à 12 ans
Bébés De 0 à 2 ans
Filtrer

Filtrer les résultats

{{filterSelected.length}}
Trier par : 
Adultes 13 ans et plus
Enfants De 3 à 12 ans
Bébés De 0 à 2 ans

{{compteurFiltreCategorie(index)}}
Formule train + séjour au ski Réservez billet de train (en exclusivité, avant l'ouverture SNCF) et logement en 1 clic.
Disponibilité limitée
{{pctDispo}}
Etablissement très prisé
0 personnes l'ont réservé cette semaine
Prix en hausseRéservez avant que les prix augmentent

Les hébergements qui correspondent à votre sélection

Avec les dates du au

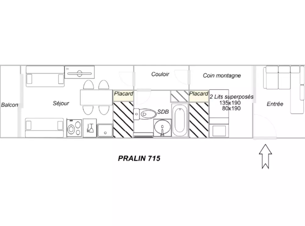
Détails de l’hébergement

-{{pourcentage}}% {{barrePrice}}€ {{finalPrice}}€/pers.
Cet hébergement est indisponible à vos dates. Essayez d’autres dates ou poursuivez votre recherche d’hébergement.

Une formule ski ?

Descriptif de la résidence

La résidence Les sentiers du Tueda - Le Pralin se trouve aux pieds des pistes et juste au-dessus du centre commercial du Chatelet. Vous êtes à proximité du rassemblement ESF et du jardin d'enfants les Piou-Piou.

Pour accéder aux pistes, il vous suffit de traverser une petite place pour rejoindre le départ principal des pistes. L'arrêt de navette le plus proche est au pied de la supérette est "Chatelet ", à 100m environ de la résidence.

Avis clients

3.5/5 sur Avis vérifiés

Calculée à partir de 2 avis obtenus sur les 5 ans

Avis clients

Trier par

Aucun résultat pour «{{query}}».

Préparer la route des vacances

Adresse

419 route du Châtelet

73550 LES ALLUES

itinéraire
Par la route
Autoroute A 43 jusqu'à Albertville.
Puis RN 90 (2 x 2 voies) jusqu'à Moûtiers.
Puis D 90 sur 18km (équipements conseillés).
• Genève / Méribel 120 km
• Lyon / Méribel 200 km
• Paris / Méribel 630 km
• Londres / Méribel 1060 km

Par train
Méribel est à 18 km de la gare SNCF de Moûtiers-Salins.
Liaisons TGV avec Brest, Le Havre, Lille, Nantes, Paris, Versailles, Poitiers, Tours, Quimper, Rennes, Rouen, Cherbourg, Bruxelles par Thalys et Londres par Eurostar.

Horaires de remise des clés :

14:00-19:00
08 25 14 98 49
0.20€/min.
lundi au samedi de 9h30 à 19h30.
f