Villa Oliveda | Piscine & Salon Cinéma

Villa Oliveda | Piscine & Salon Cinéma

Affiner votre recherche

Vacanciers
Ajouter les vacanciers
Adultes 13 ans et plus
Enfants De 3 à 12 ans
Bébés De 0 à 2 ans
Filtrer

Filtrer les résultats

{{filterSelected.length}}
Trier par : 
Adultes 13 ans et plus
Enfants De 3 à 12 ans
Bébés De 0 à 2 ans

{{compteurFiltreCategorie(index)}}
Formule train + séjour au ski Réservez billet de train (en exclusivité, avant l'ouverture SNCF) et logement en 1 clic.
Disponibilité limitée
{{pctDispo}}
Etablissement très prisé
0 personnes l'ont réservé cette semaine
Prix en hausseRéservez avant que les prix augmentent

Les hébergements qui correspondent à votre sélection

Avec les dates du au

Détails de l’hébergement

-{{pourcentage}}% {{barrePrice}}€ {{finalPrice}}€/pers.
Cet hébergement est indisponible à vos dates. Essayez d’autres dates ou poursuivez votre recherche d’hébergement.

Une formule ski ?

Sur place & à proximité

Localisation
  • Proche aéroport : Aéroport de Marseille Provence #MRS (40.9 km)

Préparer la route des vacances

Adresse

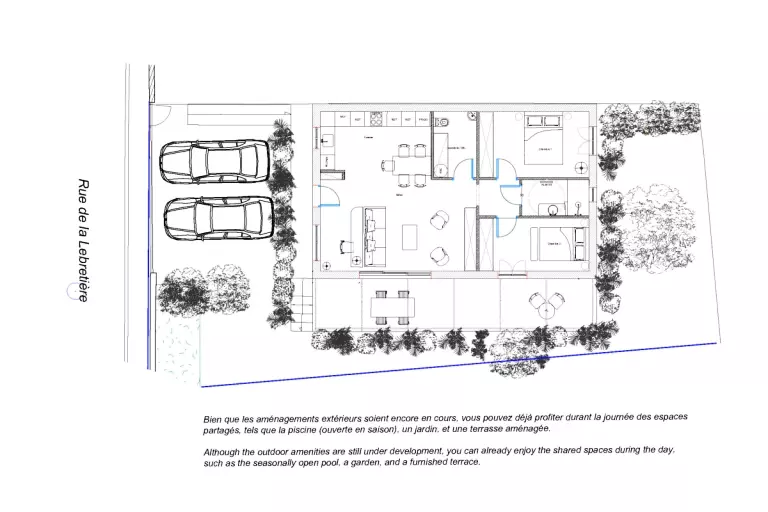
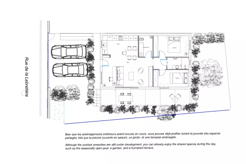
4 rue de la Lebretière, Villa Oliveda

84160 Lourmarin

itinéraire
EN VOITURE
- En venant du nord : quitter l'autoroute A7 à Sénas. Prendre la nationale 7 en direction d'Aix en Provence. Rejoindre Lourmarin.
- En venant du sud : dépasser Aix en Provence et prendre la direction de Sisteron. Sortir de l'autoroute à Pertuis. Prendre la route de Cavaillon. Passer Villelaure et Cadenet. Rejoindre Lourmarin.

EN TRAIN
Gare TGV Aix en Provence

EN AVION
Aéroport Marseille Provence

Horaires de remise des clés :

17:00-21:00
08 25 14 98 49
0.20€/min.
lundi au samedi de 9h30 à 19h30.